FORNERIA 1121

.
projeto

FORNERIA 1121

Tipo: Projeto Comercial (Reforma/Modificação)

Área: 646,21m²

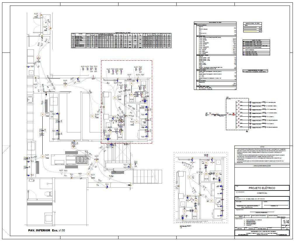
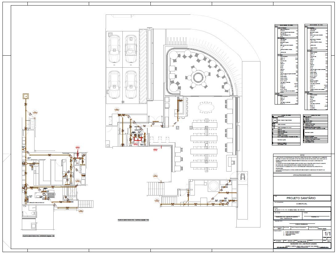
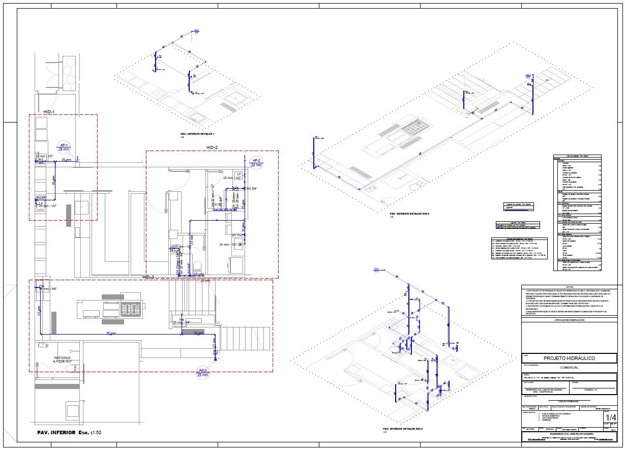
Contratados pela Forneira 1121, elaboramos os projetos de engenharia para atender o projeto de arquitetura assinado por Leo Romano, que proporcionou ousada intervenção artística na antiga edificação existente que hoje sedia a Forneria. Nossos projetos abrangeram desde intervenções e reforços estruturais aos projetos de instalações prediais. Após prosperarem as entregas dos projetos, participamos ativamente da reforma através de contrato de assessoria em obra, e na aprovação do projeto.

Serviços Realizados pela Carneiro:

– Projeto de Intervenção Estrutural

– Projeto Hidráulico;

– Projeto Sanitário;

– Projeto Elétrico;

– Assessoria na aprovação do projeto;

– Assessoria na execução da obra.

Obtenha uma consultoria!

Entre em contato e saiba como podemos ajuda-lo com o seu projeto.

ElLunaCoffee
teknoneo
sobarnews
Cosmic Billiard
ayam kelopoe
Lppni
Lppni Ambon
Lppni Banda Aceh
Lppni Bandar Lampung
Lppni Bandung
Lppni Banjarbaru
Lppni Bengkulu
Lppni Denpasar
Lppni Gorontalo
Lppni Jakarta
Lppni jambi
Lppni jayapura
Lppni kendari
Lppni kupang
Lppni makassar
Lppni mamuju
Lppni manado
Lppni manokwari
Lppni mataram
Lppni medan
Lppni merauke
Lppni nabire
Lppni padang
Lppni palangkaraya
Lppni palembang
Lppni palu
Lppni pangkalpinang
Lppni pekanbaru
Lppni pontianak
Lppni samarinda
Lppni semarang
Lppni serang
Lppni sofifi
Lppni sorong
Lppni surabaya
Lppni tanjung pinang
Lppni tanjong selor
Lppni wamena
Lppni yogyakarta
ellunapedia.com
Ternakwin
Ternakwin
Ternakwin
Ternakwin
Ternakwin
Ternakwin
Ternakwin
Ternakwin
Ternakwin
Ternakwin
Ternakwin
Bandar Togel Resmi
Togel Online Terpercaya
Ternakwin
Ternakwin
Ternakwin
Ternakwin
Ternakwin
Ternakwin
Ternakwin
Togel Online Terpercaya
Link Togel Terpercaya
Slot Gacor Online
Togel Resmi Terpercaya
Togel Online Resmi
Lingtogel77
Angsawin
Angsawin